Plan pour Permis de construire à Lorient, Groix, Languidic, Ploemeur,Hennebont…

SPM Modélisation – Des plans professionnels pour vos projets de construction ou d’extension
Vous préparez un projet de construction, d’extension, ou d’aménagement important à Lorient, sur l’île de Groix, ou dans le Morbihan sud ?
Avant de démarrer, vous devez probablement obtenir un permis de construire.
Chez SPM Modélisation, je vous propose un accompagnement sur mesure, du relevé des côtes à la remise de votre dossier prêt à déposer — ou même déposé pour vous.

Qui est concerné par un permis de construire ?
Le permis de construire (PC) est obligatoire pour tous les projets :
- de construction neuve (maison, garage, atelier, dépendance)
- d’extension > 20 m² (ou > 40 m² si PLU en zone urbaine)
- de piscine couverte ou > 100 m²
- de transformation d’usage d’un bâtiment (grange, local pro, etc.)
- de modification de la structure porteuse ou des façades
Si vous êtes dans le Pays de Lorient, chaque commune applique son PLU avec ses propres contraintes. Je vous aide à vérifier ce qui s’applique à votre situation (zonage, servitudes, règles d’implantation…).
⚠️ Si votre projet dépasse 150m² habitable, il faut faire votre demande auprès d’un architecte
Étapes de l’accompagnement chez SPM Modélisation
1. Échange et analyse de votre projet
Un premier contact (téléphonique ou sur site) pour comprendre votre projet et étudier la faisabilité réglementaire (surface, PLU, accessibilité…).
2. Relevé, plans et modélisation
Je réalise les plans techniques (situation, masse, coupe, façades), les insertions paysagères, et, si souhaité, des vues 3D réalistes pour vous projeter.
Notre échange se passe en visio avec un partage d’écran afin de voir le projet sous tous les angles.
3. Deux options selon vos besoins
- Option 1 : Plans seuls
Vous recevez un dossier complet prêt à déposer : je vous fournis tous les éléments au format PDF. - Option 2 : Accompagnement complet
Je m’occupe de tout, y compris du formulaire Cerfa, du montage administratif, et du dépôt en mairie (ou via le portail numérique).
4. Suivi et réception du récépissé
Je vous informe de l’évolution du traitement du dossier si je le dépose pour vous, jusqu’à la réception officielle.
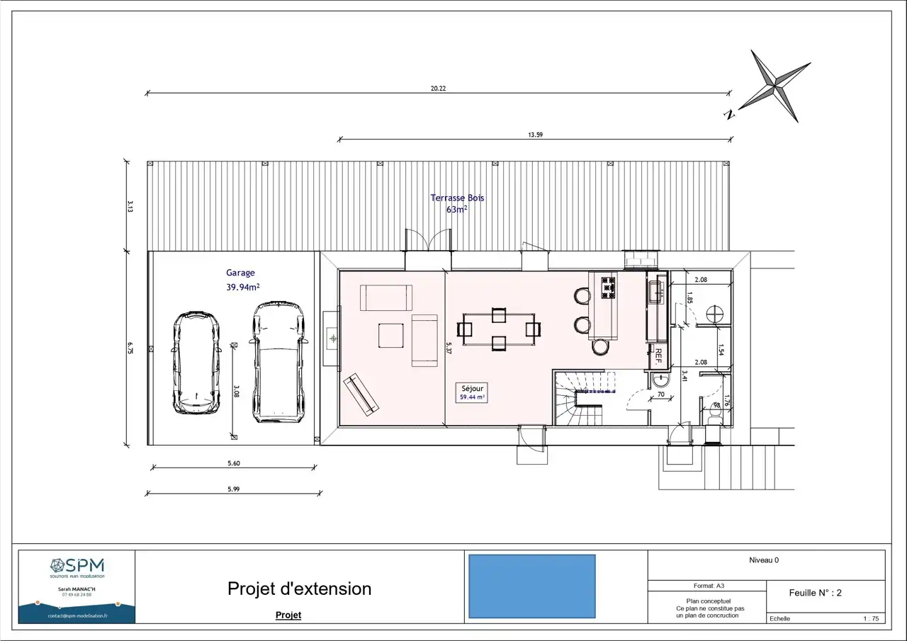
Exemples de projets accompagnés
Tous les projets sont réalisés avec des plans clairs et rigoureux, conformes aux exigences des services instructeurs.



Pourquoi faire appel à SPM Modélisation pour mon permis de construire ?
✔ Spécialiste des permis de construire pour les particuliers
✔ Parfaite connaissance des règles locales d’urbanisme
✔ Des plans précis pour éviter les retours de dossier
✔ Un accompagnement souple selon votre degré d’autonomie
✔ Une réactivité appréciée dans le Pays de Lorient
Contactez SPM Modélisation
Parlons de votre projet et évaluons ensemble si un permis est nécessaire.